Napęd CAME do bram dwuskrzydłowych, komplet z fotokomórkami
Kontakt
Kontakt
Więcej informacji o produkcie uzyskasz kontaktując się z naszym handlowcem:
Opis
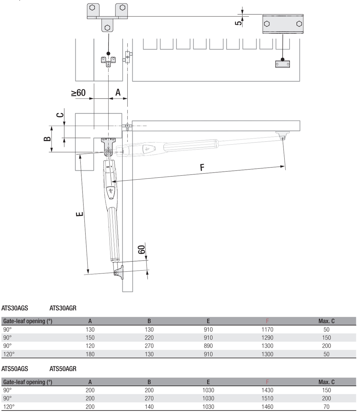
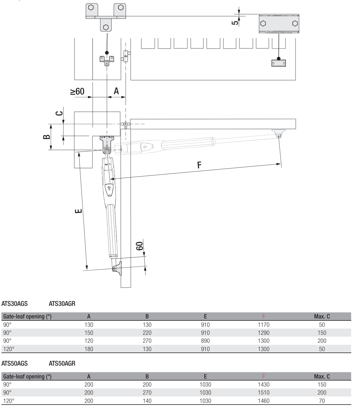
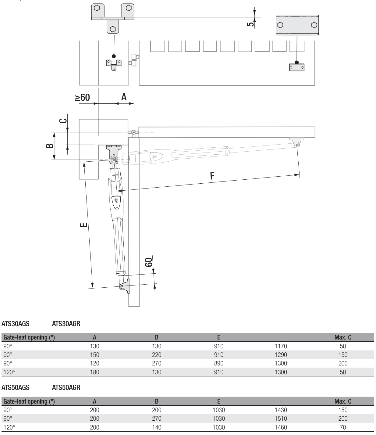
Przedstawiamy napęd ATS-3-AGS, najwyższy model marki Came, który jest zaprojektowany do bram skrzydłowych z dużymi i szerokimi słupkami. Odległość osi zawiasu do krawędzi słupka może wynosić do 200 mm. Ta wersja napędu wykorzystuje prąd przemienny (AC), co przynosi kilka znaczących korzyści dla wymagających użytkowników.
Zalety wersji AC:
- Moc i stabilność: Napęd AC zapewnia stałą moc nawet przy dużym obciążeniu, co gwarantuje niezawodną pracę nawet dla ciężkich i dużych bram także przy wietrznej pogodzie.
- Odporność i długa żywotność: Silniki AC są znane ze swojej solidności i odporności, co oznacza mniej konserwacji i dłuższą żywotność całego systemu.
- Wysoka wydajność: Napędy AC działają z wysoką wydajnością, co minimalizuje straty energetyczne i zapewnia efektywną pracę.
- Łatwa instalacja: Wersja AC napędu ATS jest zaprojektowana do szybkiej i łatwej instalacji, co oszczędza czas i koszty przy montażu.
- Kompatybilność z różnymi instalacjami: Napęd AC jest idealny dla szerokiej gamy zastosowań, w tym domowych i komercyjnych bram, i jest w stanie pracować w różnych warunkach klimatycznych.
Podstawowe funkcje:
- Elektromechaniczny napęd: ATS-3-AGS wykorzystuje niezawodny system elektromechaniczny do płynnego i efektywnego ruchu bram.
- Automatyczne zamykanie: Funkcja automatycznego zamykania zwiększa wygodę i bezpieczeństwo Twojej bramy.
- Możliwość ręcznego odblokowania: W przypadku awarii prądu napęd można łatwo ręcznie odblokować, co umożliwia natychmiastowy dostęp.
- Zintegrowane funkcje bezpieczeństwa: Zaawansowane funkcje bezpieczeństwa zapewniają ochronę mienia i bezpieczną pracę bramy.
ATS-3-AGS jest idealnym rozwiązaniem dla każdego, kto szuka niezawodnego i wydajnego napędu do bram skrzydłowych. Skontaktuj się z nami po więcej informacji lub uzyskanie oferty cenowej!
Parametry
Części zestawu
Napęd CAME do bramy skrzydłowej ATS-30-AGS
Skrzynka z centralą sterującą ZF-1N
Radioodbornik 433,9 MHz AF-43-S
Pilot rolling code, 4CH, CAME TOP44RBN
Fotokomórka max. 10m DIR-10


