Are you B2B? Sign up for better prices.

ATS-50-DGS

CAME drive for swing gates, 24 V DC

Mark: Came, Max. wing length: 5m, Recommended weight of the wing: 200kg, End point: No need end points, Motor power supply: DC 24V, Performance: 80W, Force: 400-3000N, Speed: 90° - 15-30s, Type: Threaded, Encoder: Yes

854,89 zł
without VAT
1.051,51 zł
with VAT


PCS
Stock availability
SK Krompachy > 10
PL Ruda Śląska 0

Contact

For more information about the product, you can contact our sales representative:

lubomir.petruska@umakov.sk
+421915093533 +393483490444

Description

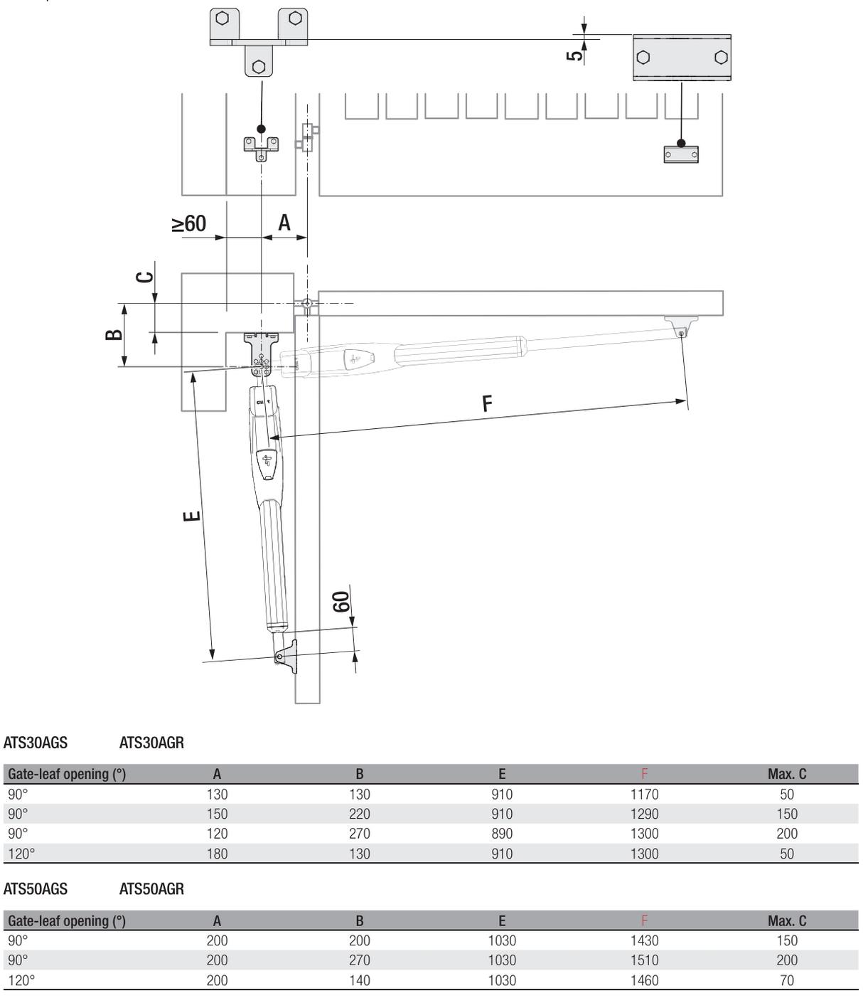
Possibility to anchor the drive on a wide post, the distance from the hinge axis of the gate wing to the edge of the post can be up to 200mm.

Parameters

Mark
Information about producer of product
Came
Max. wing length
Maximum wing length for the given drive
5m
Recommended weight of the wing
Odporúčaná hmotnosť krídla brány pre správnu funkčnosť pohonu.
200kg
Type
Threaded
End point
Information about the need for gate end stops with the selected drive.
No need end points
Motor power supply
Type and value of the motor supply voltage
DC 24V
Performance
80W
Force
400-3000N
Speed
Parameter of the drive feed speed
90° - 15-30s
Encoder
Yes

Catalog list

Sets

Came drive for single-leaf gate, set with photocells ATS-5-DGS-LEFT/RIGHT-ZKIT

Mark
Came
Max. wing length
5m
Recommended weight of the wing
200kg
1.949,80 zł
without VAT
2.398,25 zł with VAT
Low stock (12 units)
SET
Part of set

CAME drive for swing gates, 24 V DC ATS-50-DGS

1 pcs
Mark
Came
Max. wing length
5m
Recommended weight of the wing
200kg

Electronics Came for double gate, 24 V DC ZL65

1 pcs
Mark
Came
Drive slowdown
Drive decelerate before endpoint

Radio card 433,9 MHz AF-43-S

1 pcs
Mark
Came

Remote controller CAME TOP fix code, 2CH, CAME TOP-432-EE

1 pcs
Mark
Came
Frequency (MHz)
433
Code type
Fix

Photocell for plaster montage max. 10m DIR-10

1 pcs
Mark
Came
Power supply
12-24V AC
Protection level
IP54

Came drive for double-leaf gate, set with photocells ATS-5-DGS-ZKIT

Mark
Came
Max. wing length
5m
Recommended weight of the wing
200kg
2.469,67 zł
without VAT
3.037,69 zł with VAT
Low stock (16 units)
PCS
Part of set

CAME drive for swing gates, 24 V DC ATS-50-DGS

2 pcs
Mark
Came
Max. wing length
5m
Recommended weight of the wing
200kg

Electronics Came for double gate, 24 V DC ZL65

1 pcs
Mark
Came
Drive slowdown
Drive decelerate before endpoint

Radio card 433,9 MHz AF-43-S

1 pcs
Mark
Came

Remote controller CAME TOP roling code, 4CH, CAME TOP44RBN

1 pcs
Mark
Came
Frequency (MHz)
433
Code type
Rolling

Photocell for plaster montage max. 10m DIR-10

1 pcs
Mark
Came
Power supply
12-24V AC
Protection level
IP54
Napęd CAME do bram skrzydłowych, 24 V DC
umakov-pl

CAME drive for swing gates, 24 V DC

854,89 zł
Possibility to anchor the drive on a wide post, the distance from the hinge axis of the gate wing to the edge of the post can be up to 200mm.
View product